大阪府羽曳野市古市6丁目新築一戸建ての不動産情報です。
価格 2,380万円返済例 月々 円
新築一戸建て
近鉄長野線 古市駅 徒歩19分
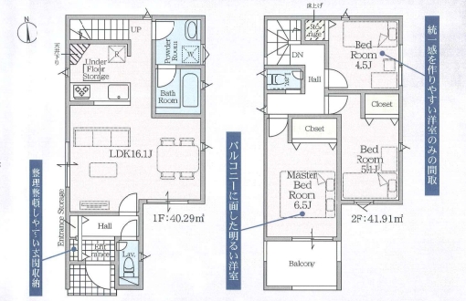
土地面積 80.39㎡ / 建物面積 77.34㎡ / 間取り 3LDK
![]() |
|
| 物件番号 | 100000086680 |
|---|---|
| 住所 | 大阪府羽曳野市古市6丁目 |
| 小学校区 | 羽曳野市立古市南小学校 |
| 中学校区 | 羽曳野市誉田中学校 |
| 間取 | 3LDK |
| 駐車場 | 有 |
| 土地面積 | 80.39㎡ |
| 建物面積 | 77.34㎡ |
| 築年月日 | ----年--月 |
| 構造 | 木造 |
| 用途地域 | 第一種住居地域 |
| 建ぺい率 | 60% |
| 容積率 | 188% |
| 地目 | 宅地 |
| 現況 | 空家 |
| 引渡し | 期日指定 |
| 取引態様 | 仲介 |
現在の店頭基準金利は2.475%
2380万円 借入期間年 金利%
毎月のお支払い額円
※頭金0円で10年固定(ボーナス払いなし)の場合の金額です。
- 駅まで徒歩圏内です。
- 新築です。
大阪府羽曳野市古市6丁目新築一戸建て
| 物件担当の溝口幸雄です。 現地へのご案内につきましてはお気軽にお問い合わせください。 |
羽曳野市立古市南小学校区
羽曳野市誉田中学校区
表示の地図は本物件の正確な位置を表示した地図ではございません。物件周辺の地図を表示しております。
会員登録の上、ログインいただきますと、物件の位置を正確に表示した地図がご覧いただけます。
会員登録の上、ログインいただきますと、物件の位置を正確に表示した地図がご覧いただけます。
その他設備・条件
エレベーター システムキッチン 給湯
